Italiano
English
350 € / mese

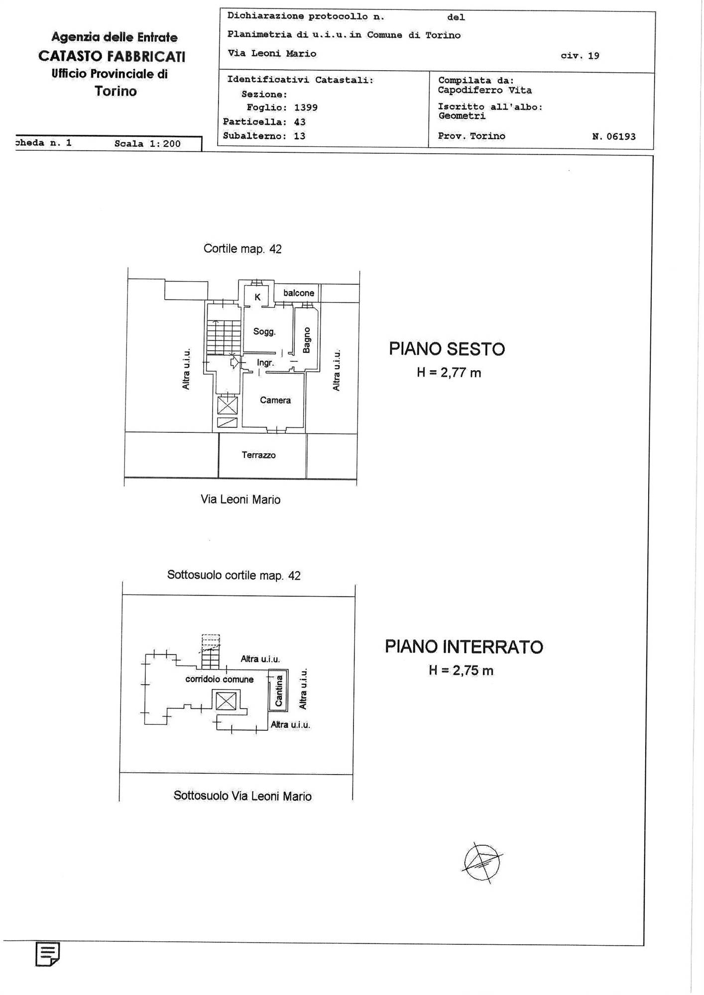
Bilocale non arredato.

Appartamento in affitto • Torino (Santa Rita) - Via Mario Leoni, 19
Via Mario Leoni, stabile anni 1960 con ascensore e riscaldamento centralizzato, affittasi attico NON ARREDATO composto : camera, tinello con cucinino arredato, ingresso, bagno e cantina. Disposto su due arie e con un terrazzo su via e balcone su cortile, serramenti in pvc con doppio vetro, riscaldamento centralizzato e radiatori con contabilizzatore di calore, caldaia a gas per acqua calda sanitaria.
Spese condominio Euro 60 mensili e riscaldamento Euro 650 annuali.
Contratto convenzionato 6+2 con cedolare secca.
La proprietà chiede referenze economiche e garanzie.
Caratteristiche principali
Codice
A000281
Città
Torino (Santa Rita)
Categoria
Appartamento
Prezzo
350 € / mese
Spese condominiali
840 € / anno
Locali
2
Camere
1
Bagni
1
Mq
50
Piano
6
Classe energetica
E
Stato Immobile
Buono
Arredi
Non Arredato
Riscaldamento
Centralizzato
Tipo Impianto
Radiatori
Acqua Calda
Autonoma
Infissi
PVC Doppio Vetro
Serramenti
Ottimo
Persiana
Tapparella PVC
Cauzione
Due Mesi
Tipo Contratto
Agevolato
Accesso Disabili
No
Tipo Registr.
Cedolare Secca

Accessori: Ascensore, Cancello Elettrico, Doppi Vetri, Porta Blindata

Mappa
Via Mario Leoni 19, Torino (TO)
Condividi su
Cookie preference