Italiano
English
2.500 € / mese

Affittasi locale nuovo predisposto per ristorante e pizzeria.

Negozio in affitto • Torino (Aurora) - Via Perugia, 41
Via Perugia, 41 angolo via Padova, 58 situato in una posizione strategica vicino al Campus Universitario Einaudi, la Nuvola Lavazza, la Sede della Robe di Kappa e la Palestra Go Fit edificata sull' area ex mercato dei fiori.
L'edificio dei primi del novecento è stato completamente ristrutturato nel 2023, mantenendo uno stile evocante i colori dell'epoca tardo Vittoriana.
Affittasi locali predisposti per ristorante o pizzeria, ad angolo con ingresso da via Perugia, 41.
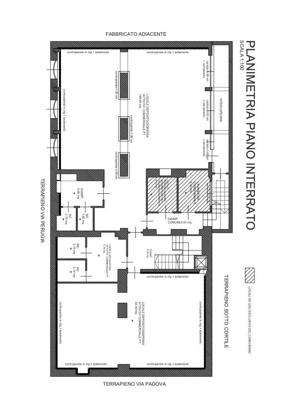
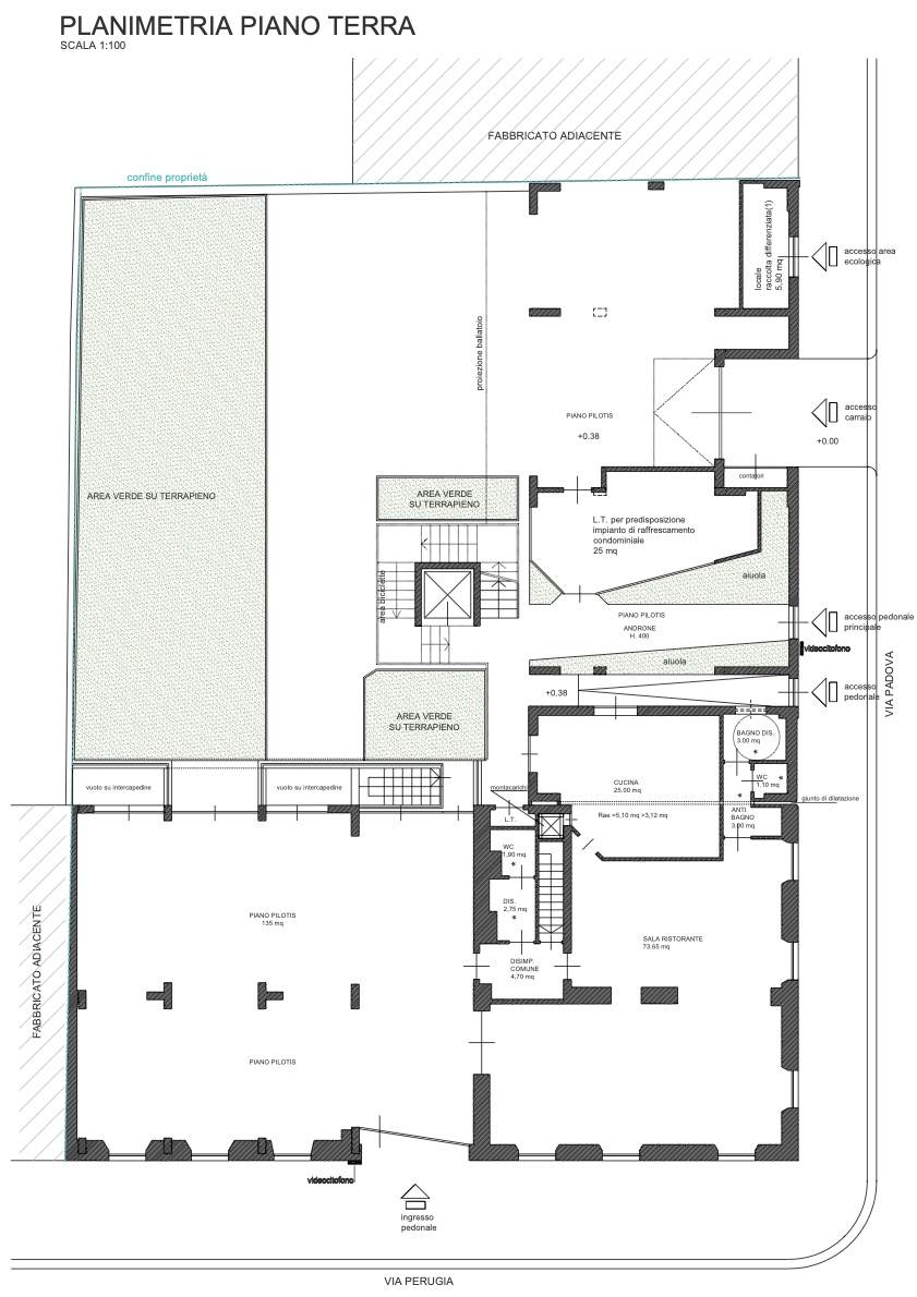
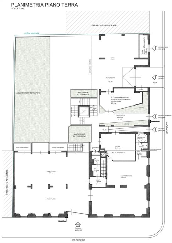
Questo locale si sviluppa su due piani, dispone di 2 canne fumarie, locale cucina e tutto costruito con normative igienico sanitarie attuali, spogliatoi predisposti fino a 10 dipendenti, dotato di tutte le nuove tecnologie, impianti a norma Asl, superficie totale mq. 328, superficie area cucina mq. 28, superficie utile area coperti mq. 75 circa, deposito, spogliatoio e cantina mq. 90
ingresso privato da tettoia coperta mq. 135.
MontavIvande dal deposito del ristorante con fermate fino al piano 4 dell'edificio per la possibilità di servire anche i 23 bilocali arredati e locati.
La proprietà richiede garanzie economiche e fideiussioni di terzi.
Non perdere l'occasione di aprire il tuo locale in una delle zone in maggior rivalutazione del momento.
Caratteristiche principali
Codice
Ristorante e Pizzeria Campus Einaudi.
Città
Torino (Aurora)
Categoria
Negozio
Prezzo
2.500 € / mese
Spese condominiali
600 € / anno
Locali
3
Bagni
4
Mq
120
Piano
Terra
Classe energetica
D
Stato Immobile
Nuovo
Grado
Signorile
Riscaldamento
Autonomo
Tipo Riscaldam.
Ventilconvettore
Tipo Impianto
Aria
Acqua Calda
Autonoma
Raffrescamento
Fan Coil
Infissi
Metallo Doppio Vetro
Serramenti
Nuovo
Tipo Contratto
Commerciale
Numero Vetrine
Cinque o Più
Accesso Disabili
Nessuna Barriera
Accesso interno disabili
Pieno accesso
Tipo Registr.
Tradizionale

Accessori: Aria Condizionata, Bagno Handicap, Cancello Elettrico, Doppi Vetri, Tapparelle Elettriche

Mappa
Via Perugia 41, Torino (TO)
Cookie preference