Italiano
English
250.000 €

Santa Rita, zona Sporting, appartamento con sottotetto.

Appartamento in vendita • Torino (Santa Rita) - Via Saliceto, 18
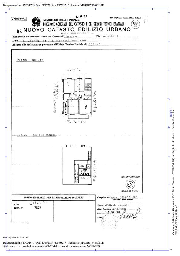
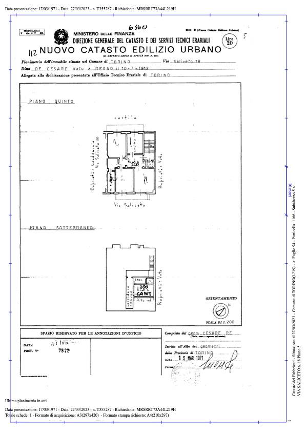
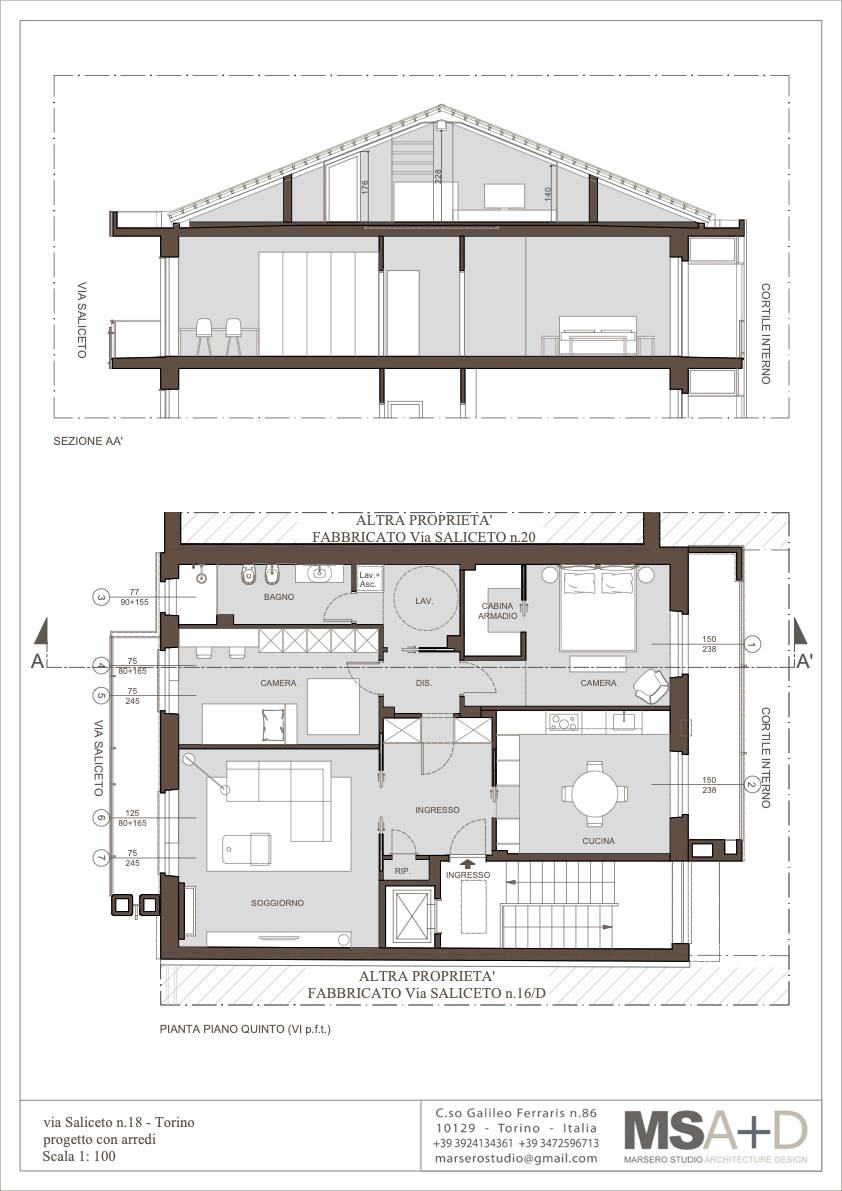
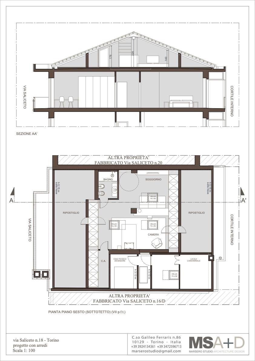
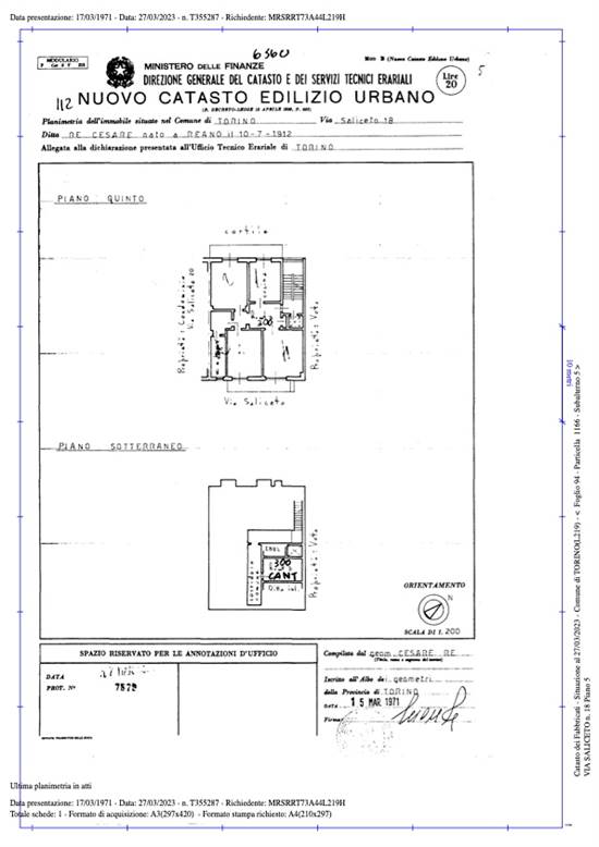
Via Saliceto 18, adiacente corso Agnelli, in stabile degli anni ’70 in cui si è appena ultimato il rifacimento della facciata e dei balconi lato strada e con facciata laterale coibentata con cappotto termico, proponiamo in vendita ampio quadrilocale sito al piano quinto e ultimo, composto di : soggiorno, due camere, cucina, bagno, ingresso, due balconi e con possibilità di recuperare il sottotetto attualmente non abitabile per realizzare altre 2 camere e un servizio. Doppia esposizione, luminoso. Completa la proprietà una cantina al piano interrato. Le spese condominiali ammontano a circa euro 2.200,00/anno, il riscaldamento è centralizzato con contabilizzatori di calore, la quota fissa ammonta ad euro 280,00 circa.
Caratteristiche principali
Codice
Saliceto 18
Città
Torino (Santa Rita)
Categoria
Appartamento
Prezzo
250.000 €
Spese condominiali
2.200 € / anno
Locali
5
Bagni
1
Mq
137
Balconi
2
Piano
5
Classe energetica
E
Stato Immobile
Come da Origini
Grado
Signorile
Orientamento
Ovest Est
Lati Liberi
2
Arredi
Non Arredato
Tipo Soggiorno
Soggiorno
Tipo Cucina
Abitabile
Riscaldamento
Centralizzato
Tipo Riscaldam.
Caldaia
Tipo Impianto
Radiatori
Fonte Energetica
Metano
Acqua Calda
Autonoma
Raffrescamento
No
Infissi
Legno Doppio Vetro
Serramenti
Discreto
Persiana
Tapparella PVC
Pavim. Giorno
Marmo
Pavim. Notte
Parquet
Pavim. Cucina
Linoleum
Pavim. Bagno
Ceramica
Accesso Disabili
No
Isolamento
Presente
Isolamento termico
Cappotto esterno

Accessori: Ascensore, Cancello Elettrico

Mappa
Via Saliceto 18, Torino (TO)
Video
Virtual tour 360°
Cookie preference